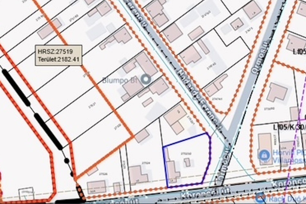
Néhány nappal azután, hogy szerkesztőségünk megírta, hogy Ménfőcsanakon az elavult szabályozás miatt fennáll a veszélye annak, hogy egy több mint 30 lakásos társasház épüljön a Győzelem utcában, most egy újabb, legalább ennyire érzékeny ingatlan ügyre derült fény a városrészben. Ezúttal a Koroncói út 34. szám alatti telket vesszük górcső alá, ahol a korábbi városvezetés egyetlen telekre vonatkozó döntéssel tette lehetővé, hogy 1054 nm-en, családi házas övezetben, négylakásos lakóépület épülhessen.

A telket 2019 decemberében vásárolta meg a Szate Bau Kft., amelynek tulajdonosai Szabó Jenő (Fidesz-KDNP) önkormányzati képviselő fiai. A politikus a város közéletében régóta ismert szereplő, így az ügynek azért van egy diszkrét bája. Főleg annak fényében, hogy két évvel az ingatlanszerzés után, 2021 októberében, Dézsi Csaba András (Fidesz-KDNP) ex-polgármester, a 29/2021 számú rendeletével, kizárólag ezt az egy telket átminősítette. Tehette mindezt egy személyben, hiszen a COVID alatt elrendelt veszélyhelyzet miatt életben lévő rendeleti ügymenet, erre felhatalmazást adott Dézsinek.
Az általa hozott rendelet lehetővé tette a négylakásos beépítést egy olyan környéken, ahol kizárólag szóló családi házak állnak. Ezzel az ingatlan piaci értéke becslések szerint, alsó hangon 30–40 millió forinttal nőhetett meg.

Ez a döntés több szempontból is szokatlan, és még inkább aggályos. Az ilyen átminősítések általában hosszabb, településrendezési eljárásokhoz kapcsolódnak, amelyek során lakossági egyeztetés is zajlik. A Koroncói úti telek esetében azonban nem egy átfogó városrendezési módosításról, hanem egyedi, polgármesteri hatáskörben meghozott döntésről volt szó. Ez a megoldás sokak szerint gyengíti az átláthatóságot és minimu felveti az egyenlő elbánás kérdését.
A helyzet pikantériáját fokozza, hogy mindez pár nappal azután került napvilágra, hogy Ménfőcsanakon, a Győzelem utcába tervezett lakópark-terv ügyében a helyiek tiltakozását váltotta ki az életben lévő, idejétmúlt szabályozás. Ott az volt a fő probléma, hogy egy régi, településközponti övezeti besorolás miatt, ma már falusias környezetben is lehet nagy léptékű lakásfejlesztést végrehajtani. A Koroncói út esetében viszont nem egy régi szabályozás, hanem egy célzott, polgármesteri döntés nyitotta meg az utat a túlépítés előtt.

A két ügyet összevetve jól látszik, alapvető probléma, hogy Győrben nincs egységes városrendezési szemlélet, ami egyrészt kiszolgáltatottá teszi a lakóközösségeket, másrészt olyan helyzeteket szül, ahol egyes szereplők különösen kedvező helyzetbe kerülhetnek. Míg a Győzelem utcában a szabályozás elavultsága, addig a Koroncói úton a szabályozás szelektív alkalmazása váltja ki a helyiek aggodalmát.
Szerkesztőségünk szívesen nyújt platformot Dézsi Csaba András volt polgármesternek, a Szate Bau Kft.-nek és Szabó Jenő képviselőnek is, hogy kiderüljön, milyen szakmai indokkal történt az átminősítés, és miért csak erre az egy telekre vonatkozott a döntés. Illetve a Győzelem utcai esethez hasonlóan felhívjuk a városrész önkormányzati képviselőjének, Lackovits-Takács Tímea figyelmét az újabb csanaki anomáliára. Ha nem tudott róla az csak baj, ha viszont tudott róla - és nem tett semmit - az pedig még nagyobb baj. A városrendezési szabályok kiszámíthatósága ugyanis közérdek, ha az átláthatóság sérül, az nemcsak a környék lakóit, hanem az egész várost negatívan érinti.
|
Támogasd a hatalomtól független újságírást! Bár a kormánymédia megpróbálja elhitetni, hogy a tőlük független szerkesztőségek úsznak a pénzben ez közel sincs így. Amennyiben neked is fontos, hogy sokáig legyen még a hatalmat ellenőrző hang, akkor támogasd adománnyal a mi munkánkat is segítő Nemzeti Újságírók Demokratikus Egyesületét. Adományodat ide utalhatod: 10918001-00000113-44920004. Köszönjük! |
